일진알미늄 제품소개

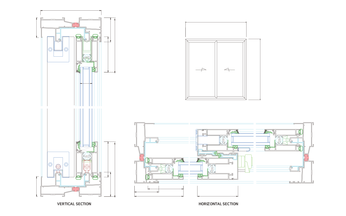
120mm 슬라이딩 단창(HAT120)
특징
· 아존 + 폴리아미드 단열재를 취부하여 실내의 에너지 손실이 적음
· EPDM 가스켓, 고급 모헤어를 취부하여 기밀성과 수밀성 우수
· 45° 클리핑으로 견고하고 외관이 미려
용도
아파트, 단독주택, 빌딩, 빌라 등 중·소형 창호
스펙
| 구분 | 등급 | 열관류율 | 기밀성 | 유리사양 |
|---|---|---|---|---|
| 24T | 3 | 2.030 | 0.46 | 로이6 + 아르곤12 + 일반6 |


· 아존 + 폴리아미드 단열재를 취부하여 실내의 에너지 손실이 적음
· EPDM 가스켓, 고급 모헤어를 취부하여 기밀성과 수밀성 우수
· 45° 클리핑으로 견고하고 외관이 미려
아파트, 단독주택, 빌딩, 빌라 등 중·소형 창호
| 구분 | 등급 | 열관류율 | 기밀성 | 유리사양 |
|---|---|---|---|---|
| 24T | 3 | 2.030 | 0.46 | 로이6 + 아르곤12 + 일반6 |