일진알미늄 제품소개

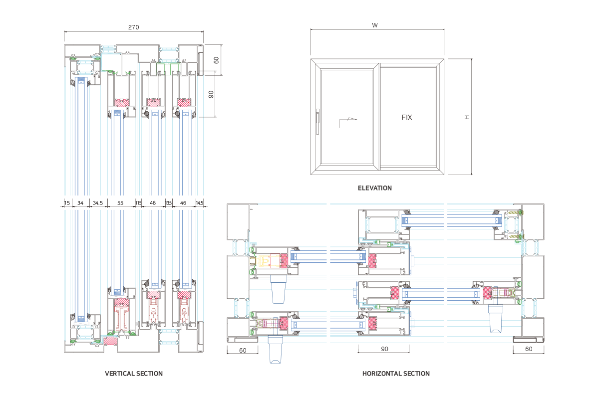
270mm 리프트업 단창(LF270)
특징
· 프리미엄 리프트업 시스템 창호
· 이중단열 구조를 적용한 최고급 단열제품
· 고하중을 견딜 수 있는 고급 하드웨어 사용
· LS시스템의 Roller 높이 조절 기능 추가
· 하부 프레임 계단형 단층설계로 우수한 수밀성 확보
용도
아파트, 단독주택, 호텔 등 대형 창호
스펙
| 구분 | 등급 | 열관류율 | 기밀성 | 유리사양 |
|---|---|---|---|---|
| 24T 유리 | 1 | 0.882 | 0.46 | 외창: 일반5+아르곤14+로이5 내창: 일반5+아르곤14+로이5 |

