일진알미늄 제품소개

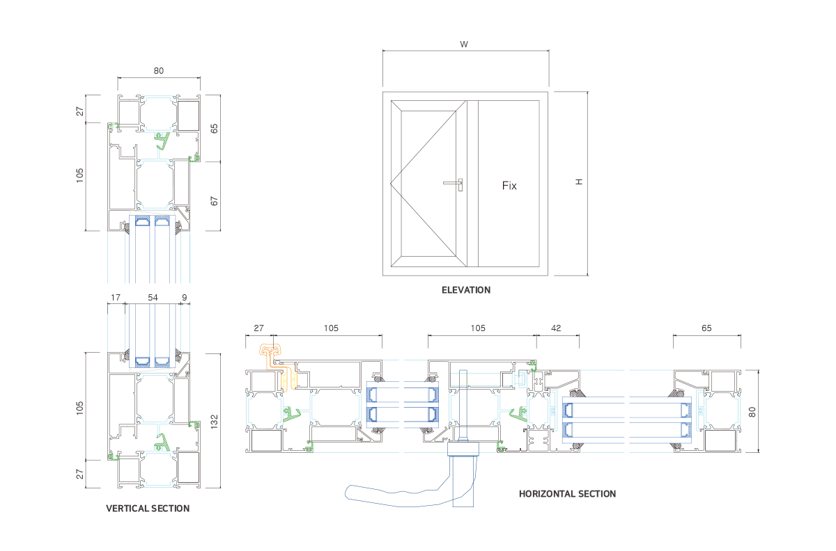
80mm 여닫이창(PSCA80)
특징
· 기어형 힌지 적용으로 개폐가 부드럽고, 창짝 처짐 및 이탈 방지
· 2스텝 방식의 환기 시스템 적용
· 35mm 광폭 폴리아미드 사용
용도
아파트, 오피스텔, 호텔 등의 고성능이 요구 되는 건축물
스펙
| 구분 | 등급 | 열관류율 | 기밀성 | 유리사양 |
|---|---|---|---|---|
| 45T 유리 | 1 | 0.991 | 0.00 | 로이6+아르곤14+일반5+아르곤14+로이6 |
| 24T 유리 | 3 | 1.519 | 0.11 | 로이5+아르곤14+일반5 |

