일진알미늄 제품소개

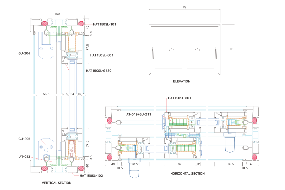
150mm 슬라이딩 단창(RY150B-T43ER)
특징
· 프리미엄 슬라이딩 단창
· 4중 차단 적용으로 기밀성 향상
· 오토락 핸들 적용 가능
· 알루미늄 소재 사용으로 뛰어난 내구성
· 아존 이중단열 및 광폭 폴리아미드 단열
용도
아파트, 단독주택, 빌딩, 빌라 등 중·소형 창호
스펙
| 구분 | 등급 | 열관류율 | 기밀성 | 유리사양 |
|---|---|---|---|---|
| 43T 유리 | 2 | 1.177 | 0.82 | 로이5+아르곤14+일반5+아르곤14+로이5 |
| 24T 유리 | 3 | 1.679 | 0.52 | 일반5+아르곤14+로이5 |


150mm 슬라이딩 단창(RY150B-P24ER)
특징
· 프리미엄 슬라이딩 단창
· 4중 차단 적용으로 기밀성 향상
· 알루미늄 소재 사용으로 뛰어난 내구성
· 아존 이중단열 및 광폭 폴리아미드 단열
용도
아파트, 단독주택, 빌딩, 빌라 등 중·소형 창호
스펙
| 구분 | 등급 | 열관류율 | 기밀성 | 유리사양 |
|---|---|---|---|---|
| 24T 유리 | 3 | 1.629 | 0.71 | 일반5+아르곤14+로이5 |
| 39T 유리 | 2등급 예상 | 로이5+아리곤12+일반5+아르곤12+로이5 | ||

