일진알미늄 제품소개

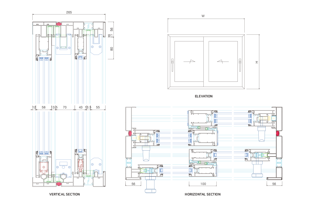
265mm 슬라이딩 이중창(TB265)
특징
· 아존 + 폴리아미드 2중 단열 적용
· EPDM 가스켓, 고급 모헤어를 취부하여 기밀성과 수밀성 우수
· 다수의 Chamber 구조로 안정적 설계
· 계단식 구조 적용으로 빗물 유입 차단
용도
아파트, 단독주택, 빌딩, 빌라 등 대형 창호
스펙
| 구분 | 등급 | 열관류율 | 기밀성 | 유리사양 |
|---|---|---|---|---|
| 43T 유리 | 1 | 0.793 | 0.58 | 외창: 로이5+아르곤14+일반5+아르곤14+로이5 내창: 로이6+공기12+일반6 |
| 24T 유리 | 1 | 0.878 | 0.76 | 외창: 일반5+아르곤14+로이5 내창: 일반5+아르곤14+로이5 |

