일진알미늄 제품소개

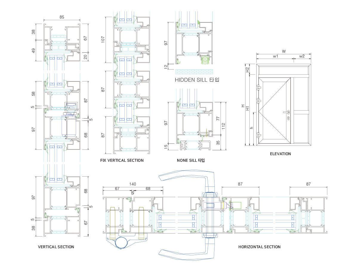
85mm 시스템도어(PSD85)
특징
· 최고급 알루미늄 시스템 도어
· 폴리마이드 단열 적용으로 우수한 단열성
· 남선 디지털 도어락 또는 일반 핸들 적용 가능
용도
단독주택, 오피스, 상가 등의 출입문
스펙
| 구분 | 등급 | 열관류율 | 기밀성 | 유리사양 |
|---|---|---|---|---|
| 43T 유리 | 1 | 0.991 | 0.09 | 로이5+아르곤14+일반5+아르곤14+로이5 |
| 24T 유리 | 3 | 1.495 | 0.41 | 로이5+아르곤14+일반5 |


· 최고급 알루미늄 시스템 도어
· 폴리마이드 단열 적용으로 우수한 단열성
· 남선 디지털 도어락 또는 일반 핸들 적용 가능
단독주택, 오피스, 상가 등의 출입문
| 구분 | 등급 | 열관류율 | 기밀성 | 유리사양 |
|---|---|---|---|---|
| 43T 유리 | 1 | 0.991 | 0.09 | 로이5+아르곤14+일반5+아르곤14+로이5 |
| 24T 유리 | 3 | 1.495 | 0.41 | 로이5+아르곤14+일반5 |