일진알미늄 제품소개

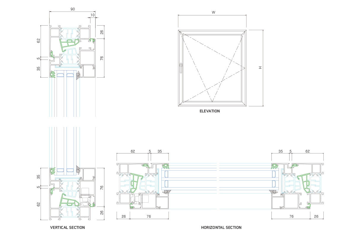
80mm 틸트&턴(PS80TT)
특징
· 프리미엄 틸트앤턴 시스템 창호
· 알루미늄 소재 사용으로 뛰어난 내구성
· 3중 기밀구조로 기밀성 및 수밀성 향상
용도
아파트, 단독주택, 호텔 등 대형 창호
스펙
| 구분 | 등급 | 열관류율 | 기밀성 | 유리사양 |
|---|---|---|---|---|
| 43T 유리 | 1 | 0.869 | 0.20 | 로이5+아르곤14+일반5+아르곤14+로이5 |
| 24T 유리 | 2 | 1.388 | 0.02 | 로이5+아르곤14+일반5 |


· 프리미엄 틸트앤턴 시스템 창호
· 알루미늄 소재 사용으로 뛰어난 내구성
· 3중 기밀구조로 기밀성 및 수밀성 향상
아파트, 단독주택, 호텔 등 대형 창호
| 구분 | 등급 | 열관류율 | 기밀성 | 유리사양 |
|---|---|---|---|---|
| 43T 유리 | 1 | 0.869 | 0.20 | 로이5+아르곤14+일반5+아르곤14+로이5 |
| 24T 유리 | 2 | 1.388 | 0.02 | 로이5+아르곤14+일반5 |