일진알미늄 제품소개

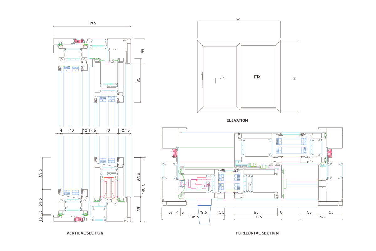
170mm 리프트업 단창(LF170)
특징
· 프리미엄 리프트업 시스템 창호
· 아존+폴리아미드 이중 단열 구조
· 다수의 Chamber 구조로 안정적 설계
· 계단식 구조 적용으로 빗물 유입 차단
용도
아파트, 단독주택, 호텔 등 대형 창호
스펙
| 구분 | 등급 | 열관류율 | 기밀성 | 유리사양 |
|---|---|---|---|---|
| 43T 유리 | 2 | 1.260 | 0.61 | 로이5+아르곤14+일반5+아르곤15+로이5 |
| 24T 유리 | 3 | 1.793 | 0.82 | 로이5+아르곤14+일반5 |

